Oslotre
About
Contact
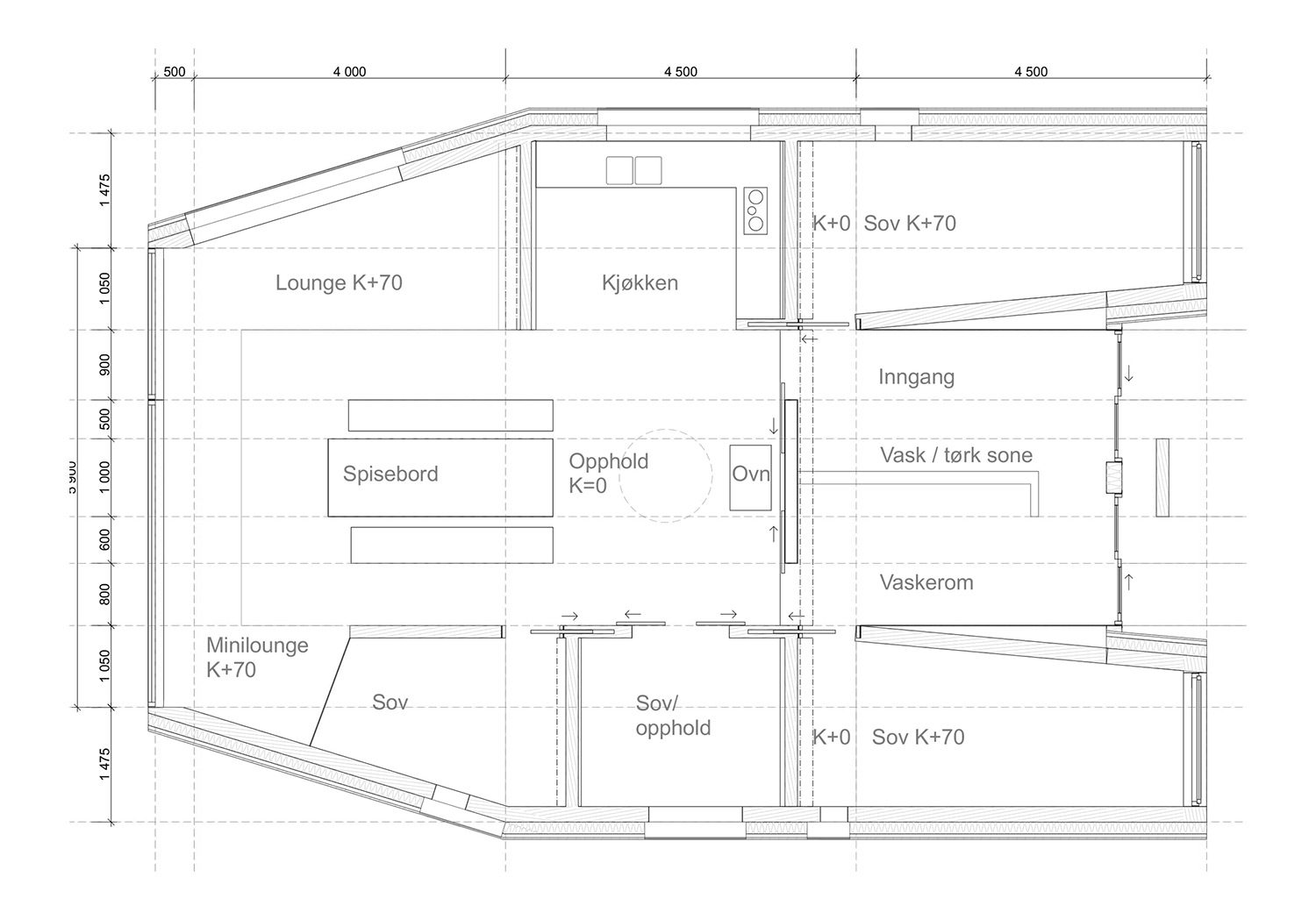
UFO Cottage
Building category:
Cottage
Project size:
11 m2
Material use:
CLT
Delivery from Oslotre:
Timberdesign, CLT delivery and assembly (As part of Massiv Lust)
Year:
2018
Location:
Outer space